This is a carousel with a large image above a track of thumbnail images. Select items from the thumbnail track or use the carousel controls on either side of the large image to navigate through the different images.
Lot 16K1 1209 Lavender Way | New Homes for Sale in Georgetown, TX
Est. Completion:Jul. Move In.
Single Family Home
$369,990
Jul. Move In.
-
1,531 sq ft
-
4 beds
-
2 baths
-
1 floor
-
2 bays
Sales Office Hours
Monday - BY APPOINTMENT ONLY
Tuesday - BY APPOINTMENT ONLY
Wednesday - BY APPOINTMENT ONLY
Thursday - BY APPOINTMENT ONLY
Friday - BY APPOINTMENT ONLY
Saturday - BY APPOINTMENT ONLY
Sunday - BY APPOINTMENT ONLY
Overview
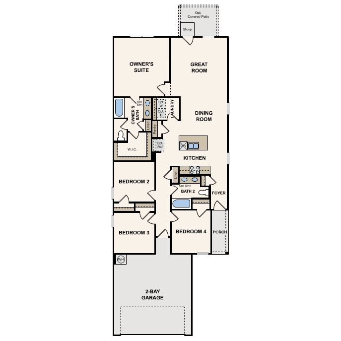
The Fresno at Pinnacle at Cottonwood Creek offers an inspired one-story layout with the perfect blend of versatility and comfort. As you enter from the generous front porch, the foyer leads to an open-concept kitchen—boasting a spacious center island and a charming dining area—plus a wide-open great room. You’ll also appreciate three sizable secondary bedrooms—perfect for a study or guest room—sharing a full hall bathroom. In the back of the home, you’ll find a private owner’s suite with a roomy walk-in closet and a deluxe owner’s bath with a walk-in shower.
Options may include:
- Covered patio
- Dual sinks in bathrooms
Floor Plan
Explore homesites at this community!
Get a feel for the neighborhood and find the right homesite for you.
Community Information
Shopping and Dining
-
Wolf Ranch Town CenterGeorgetown, TX 78628
-
Urban CottageGeorgetown, TX 78628
-
Wolf Lakes H-E-BGeorgetown, TX 78628
-
Mesquite Creek OutfittersGeorgetown, TX 78628
-
TargetGeorgetown, TX 78628
-
WalmartGeorgetown, TX 78628
-
600 Degrees PizzeriaGeorgetown, TX 78628
-
Dos SalsasGeorgetown, TX 78628
-
Hat Creek Burger CompanyGeorgetown, TX 78626
-
GoodfolksGeorgetown, TX 78626
-
2020 Market Scratch Kitchen & BarGeorgetown, TX 78628